最新文章 |
新闻动态
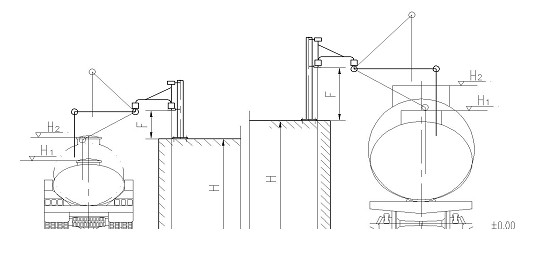
图表介绍:鹤管装卸的具体参数数据分析
发布时间:2013/12/10 点击次数:1648
鹤管参数表:
1.规格型号 QG100-L
2.是否需要立柱 需要( y ) 不需要 ( )
3.公称通径: DN100mm
4.数量: (13)套
5.材质: 内臂 a. 20#GB699-88 b.1Cr18Ni9Ti
c.其它:
外臂 a. 20#GB699-88 b. 1Cr18Ni9Ti
其它:
垂管 a.铝 b. 20#GB699-88
c. 1Cr18Ni9Ti d.其它:SS304
立柱 a. 20#GB699-88 b.其它:
6.输送介质名称: 食用植物油
7.操作温度: 20-65 操作压力: 0-6bar
8.作业方式:
装车 a.顶部装车 b.底部装车 c.密闭装车
卸车 a.敞口卸车 b.密封卸车
9.与罐车连接方式:
a.自由(即垂管直接伸入罐内)
b.快速连接器(材质:铝、不锈钢)
10.接口法兰:
a.鹤管上与现场管线相接处的接口法兰标准:
HG20595-97 WN RF DN100mm, PN 16 1.6MPa.
b.鹤管上接口法兰方向:
a.朝上 b.朝下
11.现场情况:
栈桥为新建栈桥 栈桥为旧栈桥改造 钢制栈桥 水泥栈桥
12.安装要求:
当鹤管运至现场后配管安装鹤管的接口法兰必须与现场已做好的管线严格装配(此选项需提供现场接口法兰的高度,与栈桥面或将来安装立柱底板的面的平行度及螺栓孔的位置)。(如果现场不能动火请告诉我方,填在下行其它处)。
其它:不能动火
立柱基座: 按我方标准 买方提供(请附图)
13.鹤管表面油漆颜色: 银灰
14.车辆吨位:吨
车辆情况 a.各种车型都有 b.唯一一种车型
c.其它:
15.可选附件:
防溢报警 密闭或防误操作 气动潜油泵或液压潜油泵
加热夹套 透视镜、控制箱等
16.现场数据:(单位mm)
油罐汽车 油罐火车
A1 A2 栈桥中心与汽车(钢轨)中心距离
B1max B2max 最大汽车(火车)高度
B1min B2min 最小汽车(火车)高度
C1 C2 栈桥中心与油管接口中心距离
D1 D2 下油管接口法兰离栈桥面距离
E1 E2 上油管接口法兰离栈桥面距离
F1 F2 汽车(火车)侧装口离地面(轨面)高度
G1 G2 汽车(火车)侧装口离汽车(火车)中心距离
L1 L2 雨棚最低点离地面(轨面)高度
H1 H2 栈桥离地面(轨面)高度
W W 栈桥宽度
H H 栈桥栏杆高度
XxY S 最小包络范围,x为水平方向,y为垂直方向。
括号:内为火车参数,火车参数中的高度都以轨面为基准。
注意:E1及D1,E2及D2分别为二种接口连接方式,对单管臂只填写其中的一个。
1.规格型号 QG100-L
2.是否需要立柱 需要( y ) 不需要 ( )
3.公称通径: DN100mm
4.数量: (13)套
5.材质: 内臂 a. 20#GB699-88 b.1Cr18Ni9Ti
c.其它:
外臂 a. 20#GB699-88 b. 1Cr18Ni9Ti
其它:
垂管 a.铝 b. 20#GB699-88
c. 1Cr18Ni9Ti d.其它:SS304
立柱 a. 20#GB699-88 b.其它:
6.输送介质名称: 食用植物油
7.操作温度: 20-65 操作压力: 0-6bar
8.作业方式:
装车 a.顶部装车 b.底部装车 c.密闭装车
卸车 a.敞口卸车 b.密封卸车
9.与罐车连接方式:
a.自由(即垂管直接伸入罐内)
b.快速连接器(材质:铝、不锈钢)
10.接口法兰:
a.鹤管上与现场管线相接处的接口法兰标准:
HG20595-97 WN RF DN100mm, PN 16 1.6MPa.
b.鹤管上接口法兰方向:
a.朝上 b.朝下
11.现场情况:
栈桥为新建栈桥 栈桥为旧栈桥改造 钢制栈桥 水泥栈桥
12.安装要求:
当鹤管运至现场后配管安装鹤管的接口法兰必须与现场已做好的管线严格装配(此选项需提供现场接口法兰的高度,与栈桥面或将来安装立柱底板的面的平行度及螺栓孔的位置)。(如果现场不能动火请告诉我方,填在下行其它处)。
其它:不能动火
立柱基座: 按我方标准 买方提供(请附图)

13.鹤管表面油漆颜色: 银灰
14.车辆吨位:吨
车辆情况 a.各种车型都有 b.唯一一种车型
c.其它:
15.可选附件:
防溢报警 密闭或防误操作 气动潜油泵或液压潜油泵
加热夹套 透视镜、控制箱等
16.现场数据:(单位mm)
油罐汽车 油罐火车
A1 A2 栈桥中心与汽车(钢轨)中心距离
B1max B2max 最大汽车(火车)高度
B1min B2min 最小汽车(火车)高度
C1 C2 栈桥中心与油管接口中心距离
D1 D2 下油管接口法兰离栈桥面距离
E1 E2 上油管接口法兰离栈桥面距离
F1 F2 汽车(火车)侧装口离地面(轨面)高度
G1 G2 汽车(火车)侧装口离汽车(火车)中心距离
L1 L2 雨棚最低点离地面(轨面)高度
H1 H2 栈桥离地面(轨面)高度
W W 栈桥宽度
H H 栈桥栏杆高度
XxY S 最小包络范围,x为水平方向,y为垂直方向。
括号:内为火车参数,火车参数中的高度都以轨面为基准。
注意:E1及D1,E2及D2分别为二种接口连接方式,对单管臂只填写其中的一个。


