最新文章 |
新闻动态
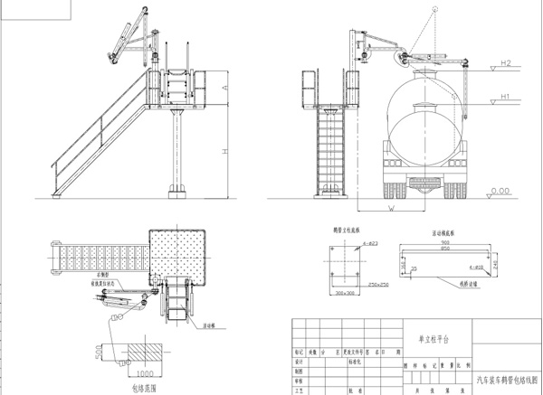
山东枣庄定制的汽车顶部装车鹤管、底部卸车鹤管(装卸臂)、单立柱栈桥、活动梯已安排生产
发布时间:2015/9/16 点击次数:1045
预计生产周期为10个工作日,我们将会尽快保质保量完成生产,并对其进行专业的测试和检验。了解相关进度,请跟接洽负责人联系。单立柱栈桥主要是为化工设备厂家设计的一款小型的发油平台,节省空间,一台多用的的特点,汽车可以随意停靠在小平台一侧,放下活动梯,人通过斜梯登上小平台,然后放下活动梯,梯子搭在汽车槽罐车顶,这样就可以对鹤管进行操作,将鹤管的垂管移动到汽车顶部的灌口就可以了。汽车顶部装车鹤管是一款专为槽车顶部装卸原油、化工介质生产设计制造的一款专用设备。此设备通过转灵活的万向节跟管道连接,通过末端的垂管,垂管经过槽车顶部的罐口进入到罐底进行作业,具有操作简单、使用安全、使用寿命长等特点。




